Православный храм вблизи деревни Залесная

Православный храм вблизи деревни Залесная

Православный храм расположен в Пермском крае на берегу р. Кама в поселке вблизи деревни Залесная. Участок пологий, храм располагается на возвышенной части вблизи набережной поселка.
На генеральном плане предусмотрены: здание храма, воскресная школа, причитовый дом, хозяйственные помещения и благоустройство территории.
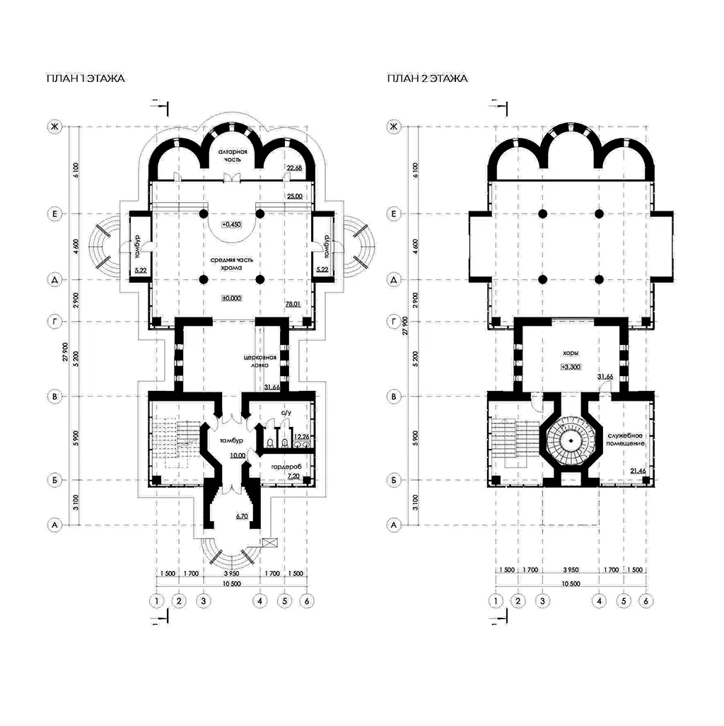
Здание двухэтажное с колокольней высотой 27,2 м. В плане храм симметричен. Первый этаж имеет четкое зонирование и состоит из: притвора, средней части с иконостасом, и алтарем. Также при входе располагается гардероб и с/у, предусмотрено место для церковной лавки, скамей и бочки со святой водой. На втором этаже располагается хор. При главной входной группе запроектирован подъемник для людей маломобильной группы.
Конструктивная система — неполный каркас. Перекрытия – монолитный железобетон. Стены выполнены из железобетона.

Православный храм вблизи деревни Залесная Православный храм вблизи деревни Залесная Православный храм вблизи деревни Залесная Православный храм вблизи деревни Залесная
Логотип заявителя
Авторы:
Марченко Анастасия Евгеньевна, руководитель: Щипалкина Татьяна Вениаминовна
Год создания: 2024