Конноспортивный манеж в г.Перми

Конноспортивный манеж в г.Перми

Конноспортивный манеж расположен в г. Перми в микрорайоне Камская Долина на ул. Борцов Революции вблизи автобусной остановки Улица 6-я Линия. К комплексу предусмотрен подъезд с ул. Борцов Революции.
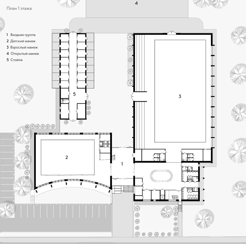
Здание имеет Г-образную форму. Состоит из двух конных манежей: детского и взрослого. Высота первого этажа 4,2м, второго и третьего — 3,3м. Так же в состав манежа входит кафе на 80 человек и зона отдыха, расположенные на втором этаже здания.
Конструктивная система — каркасная, объемно-блочная. Перекрытия — монолитные ж/б балочное по типу кессонного. Конструкции взрослого манежа — гнутоклееные большепролетные балки, детского манежа — металлические фермы.
Фасады конноспортивного манежа выполнены из окрашенного шлифованного бетона с навесными элементами из светлого дерева. В летнее время здание украшает вьющееся растение во внутреннем дворе манежа.

Конноспортивный манеж в г.Перми Конноспортивный манеж в г.Перми Конноспортивный манеж в г.Перми Конноспортивный манеж в г.Перми
Авторы:
Черныш Екатерина Викторовна, руководитель Малых Ольга Владимировна
Год создания: 2024